Soạn thảo văn bản trên máy tính không phải là thao tác quá phức tạp, nhưng những quy tắc khi soạn thảo thì không phải ai cũng biết hay những thao tác cơ bản đôi khi lại bị bỏ qua. Với những người mới làm quen với máy tính và muốn đánh văn bản thì những bước mở đầu của soạn thảo nên biết và cần nắm rõ để gõ văn bản theo đúng quy chuẩn, cũng như thực hiện những kỹ năng soạn thảo thành thạo hơn. Bài viết dưới đây sẽ tổng hợp những thao tác cơ bản khi đánh văn bản trên máy tính.
- Cách sử dụng Word Online soạn thảo văn bản trực tuyến
- Hướng dẫn toàn tập Word 2013 (Phần 4): Làm quen với thao tác soạn thảo văn bản
- Tổng hợp phím tắt Microsoft Word thông dụng
- Những thủ thuật Word hữu ích bạn không nên bỏ qua
1. Các công cụ để soạn thảo văn bản
Để gõ văn bản trên máy tính trước hết người dùng cần cài đặt những công cụ cần thiết. Đầu tiên là bộ công cụ soạn thảo như Microsoft Office, WPS Office hay sử dụng những công cụ soạn thảo trực tuyến như Word Online, Google Docs.
Hiện nay có rất nhiều công cụ soạn thảo văn bản, ngoài Microsoft Word đã quen thuộc với nhiều người. Bạn đọc có thể tham khảo thêm một số công cụ soạn thảo trong bài viết 7 lựa chọn tốt thay thế Microsoft Office.
Tiếp đến chúng ta cần cài công cụ gõ tiếng Việt trên máy tính. Bạn nên cài Unikey là công cụ gõ phổ biến hiện nay. Sau đó chúng ta thiết lập công cụ gõ tiếng Việt trên máy tính.
Bên cạnh đó nếu cần bạn cũng có thể cài đặt thêm một số font tiếng Việt để phục vụ cho việc soạn thảo, khi có thêm nhiều font đẹp mắt hơn. Tham khảo trong bài viết Cách tải và cài font tiếng Việt cho máy tính.

2. Thiết lập định dạng ban đầu cho văn bản
Chúng ta mở công cụ soạn thảo trên máy tính, chẳng hạn Microsoft Word. Khi cài đặt xong bộ Office vào máy tính thì biểu tượng của bộ công cụ hiển thị sẵn trên Desktop.
Hoặc bạn có thể mở qua thanh tìm kiếm với máy tính Windows 10.
Nếu dùng Windows XP, Windows 7 để mở Word lên chúng ta nhấn Start > All Programs > Microsoft Office > Microsoft Word.

Tiếp đến giao diện của Word được mặc định là tiếng Anh. Nếu muốn cài giao diện tiếng Việt cho Word thì bạn tham khảo một số bài viết dưới đây.
- Cách cài đặt giao diện tiếng Việt cho Microsoft Office 2010
- Cách cài đặt Tiếng Việt cho bộ Microsoft Office 2013
- Cách cài đặt giao diện ngôn ngữ Tiếng Việt trên Microsoft Office 2016
Trong giao diện Word có thanh ribbon là nơi chứa những công cụ cần thiết trong khi soạn thảo.
- Home: Giúp bạn tùy chỉnh Fonts chữ, cỡ chữ, căn lề.
- Insert: Chèn bảng biểu, hình ảnh và đồ thị.
- Page Layot: Tùy chỉnh lề, hướng giấy, bố cục văn bản.
- Resfrences: Chèn mục lục, tiêu đề bảng biểu, đồ thị.
- Maillings: Hỗ trợ trộn tài liệu.
- Review: Chỉnh sửa cũng như comments trên tài liệu.
- View: Tùy chỉnh cách hiển thị vùng soạn thảo.
Bước 1:
Mở giao diện Word và tiến hành thiết lập một số nội dung khi gõ văn bản. Đầu tiên người dùng cần chuyển đơn vị đo hiện tại của văn bản từ inch sang centimeters hoặc millimeters.
Để đổi đơn vị trên Word chúng ta tham khảo bài viết Hướng dẫn cách đổi Inch sang cm trên Word 2007. Áp dụng cách thực hiện này với hầu hết các phiên bản Word.

Bước 2:
Tiếp đến chúng ta điều chỉnh lề văn bản. Nhấn Page Layout rồi chọn Page Setup để mở giao diện căn chỉnh lề cho văn bản.

Tại giao diện này chúng ta nhập các thông số với kích thước căn lề chuẩn.
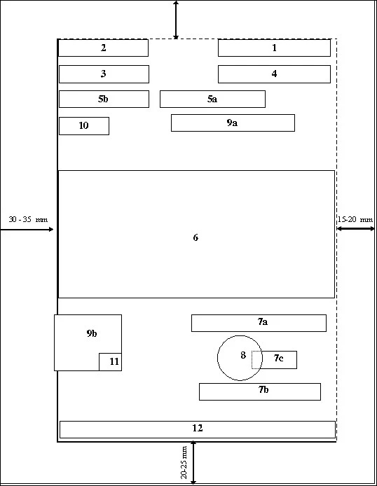
- Lề trên: cách mép trên từ 2 - 2,5 cm.
- Lề dưới: cách mép dưới từ 2 - 2,5 cm.
- Lề trái: cách mép trái từ 3 - 3,5 cm.
- Lề phải: cách mép phải từ 1,5 - 2 cm.
Tiếp đến lựa chọn hướng giấy chiều dọc là Portrait, chiều ngang là Landscape.
Chuyển sang tab Paper để lựa chọn khổ giấy trong phần Paper size.
Tham khảo một số bài chỉnh định dạng trang Word dưới đây.
- Hướng dẫn toàn tập Word 2013 (Phần 6): Căn chỉnh bố cục trang
- Hướng dẫn toàn tập Word 2016 (Phần 10): Bố cục trang
- Căn chỉnh lề trong Google Docs
- Cách sửa lỗi không chỉnh được căn lề trên Word
3. Hướng dẫn định dạng, gõ văn bản
Bước 1:
Nhấn vào mục Home rồi lựa chọn font chữ, kiểu chữ cho văn bản. Kiểu chữ sử dụng là Times new Roman, cỡ chữ 13 hoặc 14 cm.
Tiếp đến trong nhóm Paragraph nhấn vào biểu tượng mũi tên để hiển thị giao diện chỉnh khoảng cách giãn dòng. Bạn điều chỉnh thông số như hình.
Để tìm hiểu thêm về chỉnh độ giãn dòng bạn đọc tham khảo thêm trong bài viết dưới đây.
- Hướng dẫn toàn tập Word 2013 (Phần 9): Sử dụng Line and Paragraph Spacing
- Cách giãn khoảng cách dòng trong Google Docs
Bước 2:
Sau khi chỉnh sửa xong chúng ta tiến hành nhập nội dung. Với một số nội dung cần chú ý và nhấn mạnh người dùng có thể sử dụng các định dạng chữ bôi đậm, in nghiêng, gạch chân, chọn màu sắc cho chữ. Sau đó căn chỉnh vị trí của chữ như ở giữa, lui sang trái hay sang phải tại mục Font và Paragraph.
Một số thao tác nâng cao hơn cho việc định dạng phông trên Word đọc thêm trong Hướng dẫn định dạng phông chữ, thay đổi độ giãn và tạo chữ nghệ thuật trong Word.

Trong quá trình gõ văn bản nếu không gõ được tiếng Việt thì cần xem lại Unikey đã thiết lập đúng chưa. Tham khảo lỗi gõ tiếng Việt trong bài viết dưới đây.
- Khắc phục lỗi Unikey không gõ được tiếng Việt
- Cách sửa lỗi gõ tiếng Việt trên Word, Excel
Ngoài việc nhập nội dung chữ thông thường, khi soạn thảo có thể người dùng được yêu cầu chèn bảng trong Word hay chèn sơ đồ. Cách thực hiện tham khảo bài viết dưới đây.
- Cách chèn và tạo bảng trên Word
- Hướng dẫn cách vẽ sơ đồ trong Word
Bước 3:
Khi đã hoàn thành xong việc nhập nội dung vào Word, bạn nhấn vào biểu tượng Office chọn Save.

Hiển thị thư mục máy tính để chọn nơi lưu văn bản. Nhập tên cho văn bản vào khung File name. Để chuyển từ docx sang doc hay chuyển định dạng doc sang docx bạn đọc thực hiện ngay trong phần Save as type.

4. Quy tắc chuẩn cho văn bản hành chính
Với những văn bản hành chính thì có thêm rất nhiều nội dung nhỏ khác trong khi soạn thảo, và người thực hiện phải thực hiện theo đúng quy chuẩn soạn thảo.

Nội dung cụ thể trong từng vùng khi soạn thảo theo quy chỉnh bao gồm:

Trên đây là những thao tác cơ bản nhất để có thể gõ, soạn thảo văn bản trên máy tính. Có các nguyên tắc soạn thảo văn bản mà chúng ta cần phải thực hiện đúng, vừa thể hiện sự chuyên nghiệp, vừa tạo được văn bản với bố cục chuẩn và đẹp mắt.
Hy vọng bài viết này hữu ích với bạn!